REMODELAÇÃO DO ESCRITÓRIO DA FFTBL

ESCRITÓRIO

OBRAS E PROJECTOS

1997
Barcelos
Estudo Prévio
Fábrica de Fiação e de Tecidos de Barcelos Lda

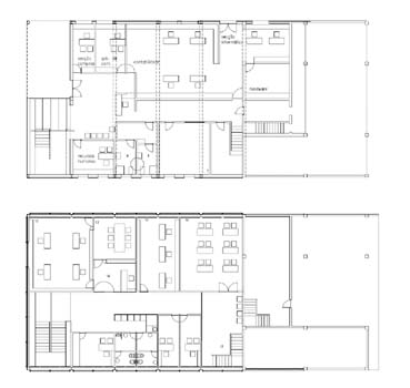
 PLANTA/ CORTES/ ALÇADOS

ESQUISSOS

MODELO 3D

FOTOGRAFIAS

MEMÓRIA DESCRITIVA

Plantas                                                     

JOÃO PEDRO XAVIER - ARQUITECTO, LDA