EDIFÍCIO DE HABITAÇÃO E COMÉRCIO
ESCRITÓRIO
OBRAS E PROJECTOS
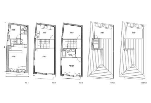
PLANTA/ CORTES/ ALÇADOS
ESQUISSOS
MODELO 3D
FOTOGRAFIAS
MEMÓRIA DESCRITIVA
JOÃO PEDRO XAVIER - ARQUITECTO, LDA